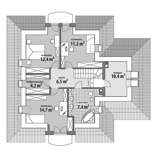
План дома "Сакраменто 2" - еще одно предложение популярного проекта "Сакраменто". В отличие от базовой версии, дизайн имеет большую площадь и гараж. План дома "Сакраменто" - интересное предложение для людей со средним участком, ведь размеры дома 13 на 12 метров. Корпус здания имеет L-образную форму, что делает его оригинальным. Проектирование относится к категории домов с выступами, направленными перпендикулярно дороге, что часто определяется в строительных условиях. Дом был спроектирован для отдельно стоящих зданий. У этого есть единственный гараж в линии здания. Дизайн является идеальным предложением для тех, кто заинтересован в доме с кровлей-оболочкой, которая является одной из самых прочных кровельных конструкций. Проект "Саркаменто" представляет собой одноэтажный дом с мансардой, благодаря которому у нас есть возможность освоить большую территорию. Сторонникам просторных пространств наверняка понравится дневная часть, предусмотренная в проекте. Благодаря открытой кухне, когда мы готовим еду, мы общаемся с членами семьи в гостиной, что способствует интеграции семьи. На кухне есть стол, благодаря которому он приобретает функциональность. Сторонники практических решений, несомненно, будут рады, что есть также место для кладовой. Камин, расположенный в гостиной, сделает интерьер более уютным. Дизайн включает в себя туалет на первом этаже и ванную комнату на верхнем этаже. Четыре спальни идеально подходят для семьи из 4-6 человек. Пространство также может быть использовано в качестве комнаты для гостей или учебы. Проекту не могло не хватить места для чрезвычайно полезного подсобного помещения. Общие барбекю и семейные трапезы будут дополнены террасой, включенной в проект. Его внешний вид относится к традиционному стилю, поэтому он будет отлично смотреться независимо от района.
Что входит в базовую комплектацию
Фундамент - ребристая плита "перевернутая чаша": • Толщина плиты – 200мм • Высота ребра: 300 мм; • Бетон М350 (В25) • Рабочая арматура А500С – 12мм • Армирование плиты в два уровня ячейкой 200х200мм • Гидроизоляция плиты – профилированная мембрана Planter . Щебеночное основание 100мм • Песчаная подушка – 300мм • Геотекстиль по основанию песчаной подушки • Закладные трубы коммуникаций • Устройство канализационной трассы с выводом за пределы фундамента;
Стены несущие газобетон / теплая керамика • Наружные стены 400мм газобетон / 440мм керамика • Внутренние несущие стены 200мм газобетон / 200мм керамика • Блоки газобетонные Bonolit D500; / Теплая керамика Porotherm • Кладка на тонкошовный клей; / Теплый раствор • Черновая высота потолка 3,0м • Утепленный монолитный армопояс • Утепленные монолитные перемычки • Армирование кладки через каждые 3 ряда - А3 d6мм;
Приезжайте и лично убедитесь в нашей компетентности. Оставьте контакты и мы пригласим вас на объект.
Хотите увидеть одну из наших действующих строек?
Часто задаваемые вопросы
Гарантия до 10 лет на построенные нашей компанией дома. Мы уверены в профессионализме наших сотрудников и партнеров, которые поставляют нам строительные материалы и остуществляют работы.
Мы строим каменные дома из газобетона и керамических блоков. В работе используем проверенных производителей, таких как Бонолит, Ytong, Wienerberger, Технониколь и др.
Здесь многое зависит от различных факторов: например погоды, уровня грунтовых вод, уклона на участке, сложности заезда, площади дома и прочих условий. В среднем строительство дома из газобетона в два этажа 100 - 150 м2 занимает 3 - 4 месяца.
Конечно, мы строим по всей Республике Татарстан. При общении с менеджером сообщите ему, что вы хотели бы посетить один или несколько объектов и он подберет вам наиболее подходящие по вашему месторасположению.
Мы работаем по договору в котором фиксируем цену - никаких доплат не будет, даже если стоимость материалов вырастет в 1,5-2 раза. Мы имеем резервы материалов, которые приобрели еще по старым ценам.
Мы работаем со Сбербанком и другими кредитными организациями. При оформлении заявки на нашем сайте, сообщите нашему менеджеру, что планируете взять кредит через нашу компанию и он сориентирует вас по срокам и ставкам.