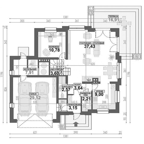
План дома "Любляна" - интересное предложение для людей со средним участком, ведь его размеры 14 х 12. В доме есть типичный блок, что значительно облегчает последующую внутреннюю обустройство. Заслуживает внимания декоративный эркер, который придает структуре дополнительный шарм. Проект был создан для земельных участков, позволяющих отдельно стоящие здания. Конструкция включает в себя двойной гараж в здании. Это также интересное предложение для людей, которые ищут дом с тентовой крышей, который относится к наиболее прочным кровельным конструкциям. Проект "Любляна" представляет собой одноэтажный дом с мансардой, что означает что дневная и ночная зоны четко отделены друг от друга. Сторонникам просторных пространств наверняка понравится дневная часть, предусмотренная в проекте. Проект предусматривает закрытие кухни для зоны отдыха, благодаря чему из гостиной не слышны звуки. Сочетание столовой и гостиной - идеальное решение для людей, которые любят организовывать вечеринки. В гостиной есть атмосферный камин, который дарит приятное тепло и создает в интерьере приятную атмосферу. Дизайн включает в себя одну ванную комнату на первом этаже и две на чердаке. Четыре комфортабельных номера удовлетворят потребности семьи из 4-6 человек. Пространство также может быть использовано в качестве комнаты для гостей или учебы. Для людей, которые ценят хорошую организацию, важной комнатой является гардероб, представленный в дизайне. Семейные посиделки в солнечные дни с террасой возле дома. Технология кирпича, рекомендованная архитектором, обеспечивает прочность и прочность конструкции. Его внешний вид относится к современному стилю и будет идеально соответствовать тенденциям вновь возникающих поместий.
Что входит в базовую комплектацию
Фундамент - ребристая плита "перевернутая чаша": • Толщина плиты – 200мм • Высота ребра: 300 мм; • Бетон М350 (В25) • Рабочая арматура А500С – 12мм • Армирование плиты в два уровня ячейкой 200х200мм • Гидроизоляция плиты – профилированная мембрана Planter . Щебеночное основание 100мм • Песчаная подушка – 300мм • Геотекстиль по основанию песчаной подушки • Закладные трубы коммуникаций • Устройство канализационной трассы с выводом за пределы фундамента;
Стены несущие газобетон / теплая керамика • Наружные стены 400мм газобетон / 440мм керамика • Внутренние несущие стены 200мм газобетон / 200мм керамика • Блоки газобетонные Bonolit D500; / Теплая керамика Porotherm • Кладка на тонкошовный клей; / Теплый раствор • Черновая высота потолка 3,0м • Утепленный монолитный армопояс • Утепленные монолитные перемычки • Армирование кладки через каждые 3 ряда - А3 d6мм;
Приезжайте и лично убедитесь в нашей компетентности. Оставьте контакты и мы пригласим вас на объект.
Хотите увидеть одну из наших действующих строек?
Часто задаваемые вопросы
Гарантия до 10 лет на построенные нашей компанией дома. Мы уверены в профессионализме наших сотрудников и партнеров, которые поставляют нам строительные материалы и остуществляют работы.
Мы строим каменные дома из газобетона и керамических блоков. В работе используем проверенных производителей, таких как Бонолит, Ytong, Wienerberger, Технониколь и др.
Здесь многое зависит от различных факторов: например погоды, уровня грунтовых вод, уклона на участке, сложности заезда, площади дома и прочих условий. В среднем строительство дома из газобетона в два этажа 100 - 150 м2 занимает 3 - 4 месяца.
Конечно, мы строим по всей Республике Татарстан. При общении с менеджером сообщите ему, что вы хотели бы посетить один или несколько объектов и он подберет вам наиболее подходящие по вашему месторасположению.
Мы работаем по договору в котором фиксируем цену - никаких доплат не будет, даже если стоимость материалов вырастет в 1,5-2 раза. Мы имеем резервы материалов, которые приобрели еще по старым ценам.
Мы работаем со Сбербанком и другими кредитными организациями. При оформлении заявки на нашем сайте, сообщите нашему менеджеру, что планируете взять кредит через нашу компанию и он сориентирует вас по срокам и ставкам.