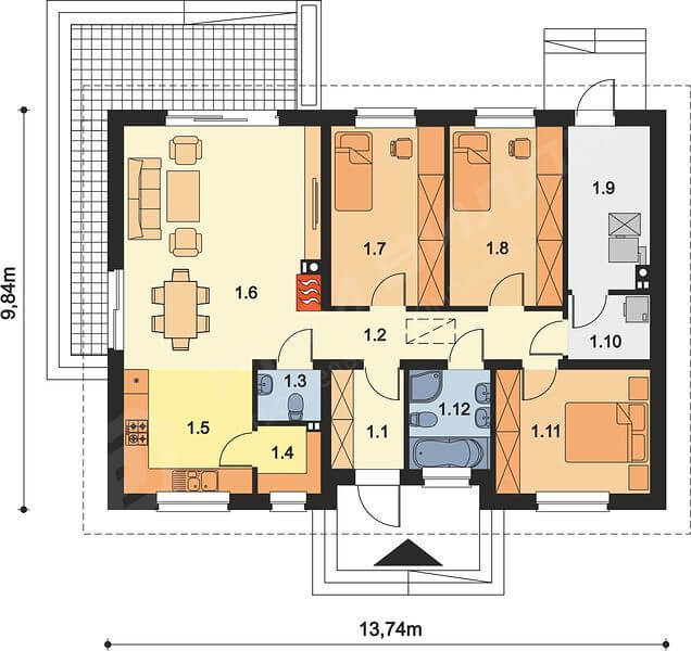
"Фарстад"
13.74 × 9.84 м
Спален
2
Общая площадь дома
Площадь первого и второго этажей, с учетом террас, крылец, балконов и гаражей
Отапливаемая площадь
Площадь первого и второго этажей, за вычетом террас, крылец, балконов и гаражей
153.00 м2
110.00 м2
Площадь террас и крылец
В площадь входят все террасы, крыльцо и балконы
43.00 м2
3
Санузлов
Габариты
Гараж
нет
Одноэтажный дом 14 на 10

Что входит в базовую комплектацию

Приезжайте и лично убедитесь в нашей компетентности. Оставьте контакты и мы пригласим вас на объект.
Хотите увидеть одну из наших действующих строек?

Часто задаваемые вопросы