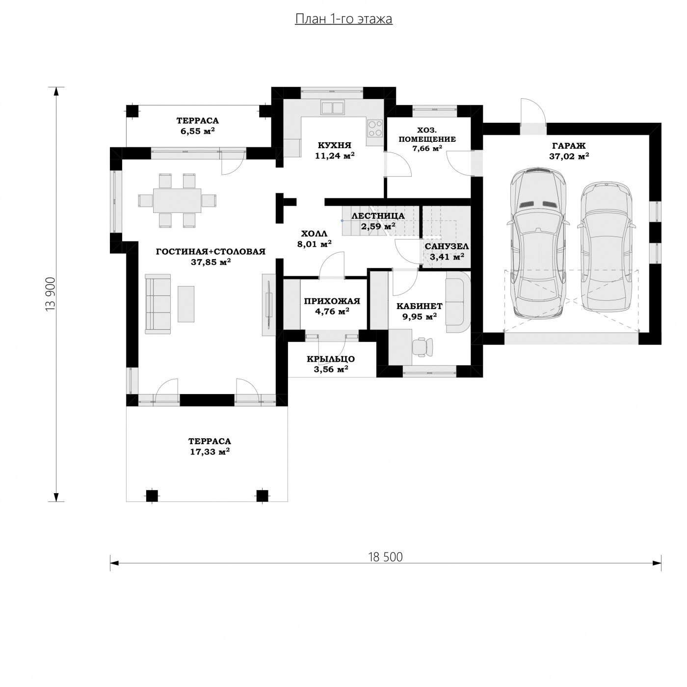
План двухэтажного дома габаритами 18 на 13м "БИРМИНГЕМ" - идеальное решение для людей со средним участком. Корпус здания имеет типичную форму, поэтому строить его дешево. Проект относится к категории домов с гребнем, расположенным параллельно дороге, что часто указывается в плане пространственного развития. Дом был создан для отдельно стоящих зданий. Автор проекта предусмотрел двойной гараж на линии здания. Корпус здания покрыт двускатной крышей, что позволяет значительно сэкономить. Проект посвящен, в частности, людям, у которых есть участок с входом с юга. Проект "БИРМИНГЕМ" - это одноэтажный дом с мансардой, что означает что полезная площадь не ограничена размером участка. Сторонникам просторных пространств наверняка понравится дневная часть, предусмотренная в проекте. Благодаря закрытию кухни в гостиной запахи готовых блюд не ощущаются в гостиной. Окно на кухне с видом на сад позволяет наблюдать за играющими детьми, готовя еду. Дневную зону также создает просторная гостиная со столовой, благодаря которой члены домохозяйства могут объединиться в одном месте. Кроме того, в гостиной есть камин, придающий интерьеру неповторимую атмосферу. На обоих этажах предусмотрена полностью функциональная ванная комната, что значительно улучшит утреннюю подготовку к уходу. Ночная часть состоит из четырех спален, которые хорошо подойдут для семьи из 4-6 человек. Пространство также может быть использовано в качестве комнаты для гостей или учебы. Кроме того, в доме также есть подсобное помещение, которое вы можете использовать в соответствии с вашими потребностями. Терраса является идеальным местом для организации семейных торжеств и минут отдыха. Внешний вид дома усиливает характеристики традиционного стиля, поэтому он будет отлично смотрится вне зависимости от местности.
Что входит в базовую комплектацию
Фундамент - ребристая плита "перевернутая чаша": • Толщина плиты – 200мм • Высота ребра: 300 мм; • Бетон М350 (В25) • Рабочая арматура А500С – 12мм • Армирование плиты в два уровня ячейкой 200х200мм • Гидроизоляция плиты – профилированная мембрана Planter . Щебеночное основание 100мм • Песчаная подушка – 300мм • Геотекстиль по основанию песчаной подушки • Закладные трубы коммуникаций • Устройство канализационной трассы с выводом за пределы фундамента;
Стены несущие газобетон / теплая керамика • Наружные стены 400мм газобетон / 440мм керамика • Внутренние несущие стены 200мм газобетон / 200мм керамика • Блоки газобетонные Bonolit D500; / Теплая керамика Porotherm • Кладка на тонкошовный клей; / Теплый раствор • Черновая высота потолка 3,0м • Утепленный монолитный армопояс • Утепленные монолитные перемычки • Армирование кладки через каждые 3 ряда - А3 d6мм;
Полный цикл работ: от подбора участка до готового дома
Что входит в стоимость дома:
Приезжайте и лично убедитесь в нашей компетентности. Оставьте контакты и мы пригласим вас на объект.
Хотите увидеть одну из наших действующих строек?
Часто задаваемые вопросы
Гарантия до 10 лет на построенные нашей компанией дома. Мы уверены в профессионализме наших сотрудников и партнеров, которые поставляют нам строительные материалы и остуществляют работы.
Мы строим каменные дома из газобетона и керамических блоков. В работе используем проверенных производителей, таких как Бонолит, Ytong, Wienerberger, Технониколь и др.
Здесь многое зависит от различных факторов: например погоды, уровня грунтовых вод, уклона на участке, сложности заезда, площади дома и прочих условий. В среднем строительство дома из газобетона в два этажа 100 - 150 м2 занимает 3 - 4 месяца.
Конечно, мы строим по всей Республике Татарстан. При общении с менеджером сообщите ему, что вы хотели бы посетить один или несколько объектов и он подберет вам наиболее подходящие по вашему месторасположению.
Мы работаем по договору в котором фиксируем цену - никаких доплат не будет, даже если стоимость материалов вырастет в 1,5-2 раза. Мы имеем резервы материалов, которые приобрели еще по старым ценам.
Мы работаем со Сбербанком и другими кредитными организациями. При оформлении заявки на нашем сайте, сообщите нашему менеджеру, что планируете взять кредит через нашу компанию и он сориентирует вас по срокам и ставкам.