"Валенсия"
21.70 × 13.20 м
Спален
3
Общая площадь дома
Площадь первого и второго этажей, с учетом террас, крылец, балконов и гаражей
Отапливаемая площадь
Площадь первого и второго этажей, за вычетом террас, крылец, балконов и гаражей
282.12 м2
220.18 м2
Площадь террас и крылец
В площадь входят все террасы, крыльцо и балконы
18.07 м2
4
Санузлов
Габариты
Гараж
43.87 кв.м.
Одноэтажный дом 21 на 13
ПЛОЩАДЬ 1 ЭТАЖА 175.35 М2
ПЛОЩАДЬ 2 ЭТАЖА 106.77 М2
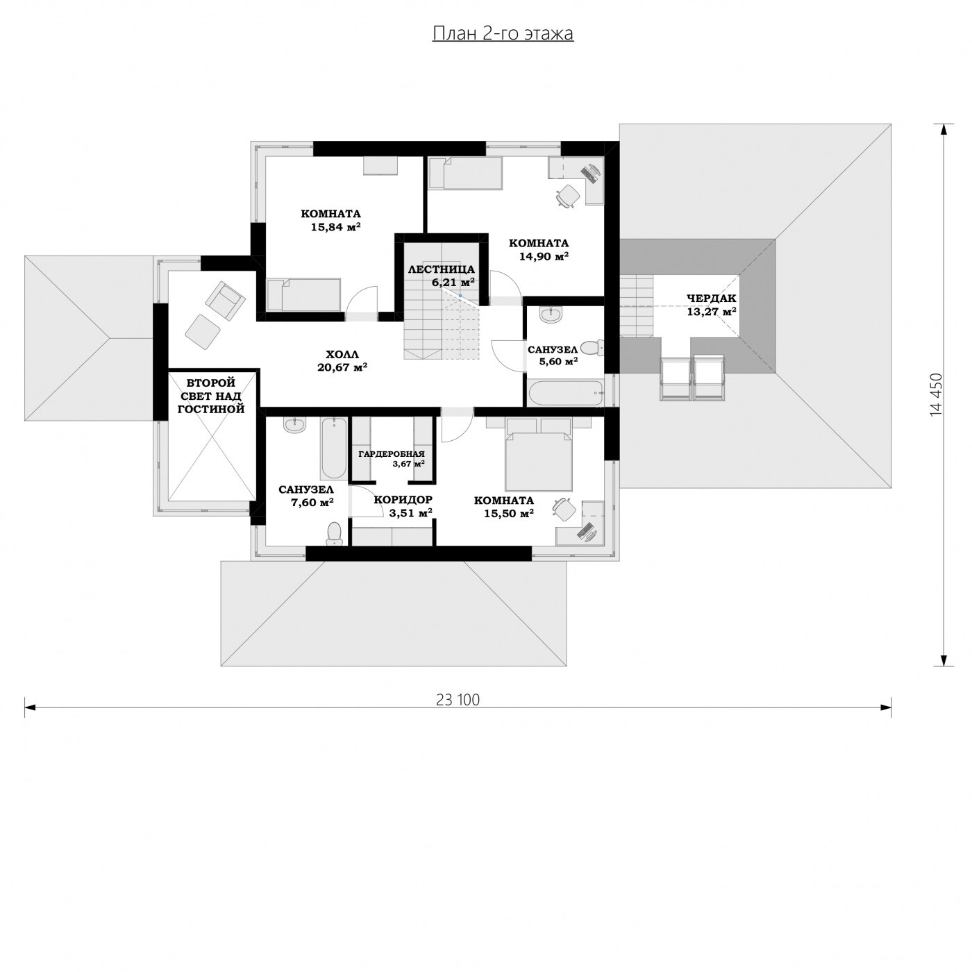
Дом с дизайном "Валенсия" - отличное решение для людей с широким участком. Строительный блок имеет типичную форму, что значительно облегчает процесс строительства. В этой конструкции гребень направлен перпендикулярно дороге, что часто указывается в плане зонирования. Он адресован инвесторам, у которых есть земельный участок, позволяющий реализовать отдельно стоящий проект. В рамках проекта предлагается двойной гараж на линии здания. Это также интересное предложение для людей, которые ищут дом с крышей-конвертом, благодаря чему подарки от здания очень привлекательны. Дизайн - проект представляет собой двухэтажный дом 21 на 13 метров, в котором дневная и ночная зоны четко отделены друг от друга. Сердцем дома является просторная дневная зона, в которой приятно проводить время вместе с близкими. Дизайн включает в себя закрытую кухню, благодаря которой запахи приготовленных ароматических блюд не проникают в зону отдыха. Кроме того, стол на кухне позволяет интегрироваться с остальным домашним хозяйством. Кроме того, предоставленная кладовая является идеальным местом для хранения консервов и продуктов питания. В доме есть столовая, соединенная с гостиной. Это решение дает вам много возможностей для организации дневной зоны. Камин, расположенный в гостиной, не только выглядит великолепно, но и обеспечивает приятное тепло в прохладные дни. Дизайн включает в себя одну удобную ванную комнату на первом этаже и еще две на этаже. Потребности семьи из 4-6 человек будут соответствовать четырем просторным спальням в проекте. Пространство также может быть использовано в качестве комнаты для гостей или учебы. Большим преимуществом дизайна является наличие в нем практичного гардероба, который сводит к минимуму необходимость иметь большие шкафы в комнатах, делая их более просторными. Мезонин, включенный в дизайн, придает интерьеру неповторимый характер. Семейные посиделки в солнечные дни с террасой возле дома. Здание было спроектировано по кирпичной технологии. Дом с видом удовлетворит 3 членов семьи, которые ценят традиционные элементы стиля, поэтому он будет отлично смотреться независимо от района. Большим преимуществом дизайна является наличие в нем практичного гардероба, который сводит к минимуму необходимость иметь большие шкафы в комнатах, делая их более просторными. Мезонин, включенный в дизайн, придает интерьеру неповторимый характер. Семейные посиделки в солнечные дни с террасой возле дома. Здание было спроектировано по гахоблочной технологии. Дом с видом удовлетворит 3 инвесторов, которые ценят традиционные элементы стиля, поэтому он будет отлично смотреться независимо от района. Большим преимуществом дизайна является наличие в нем практичного гардероба, который сводит к минимуму необходимость иметь большие шкафы в комнатах, делая их более просторными. Мезонин, включенный в дизайн, придает интерьеру неповторимый характер. Семейные посиделки в солнечные дни с террасой возле дома. Здание было спроектировано по кирпичной технологии. Дом с видом удовлетворит 3 членов семьи, которые ценят традиционные элементы стиля, поэтому он будет отлично смотреться независимо от района.

Что входит в базовую комплектацию

Видеонаблюдение
24/7
Опытный прораб
Профессиональный архитектор
Подбор и оформление участка
Фиксация цены на весь срок строительства
Оформление
ипотеки под 5,6% годовых
5 лет гарантии по договору
Контроль качества и технадзор
Полный цикл работ: от подбора участка до готового дома
Что входит в стоимость дома:
Приезжайте и лично убедитесь в нашей компетентности. Оставьте контакты и мы пригласим вас на объект.
Хотите увидеть одну из наших действующих строек?

Часто задаваемые вопросы