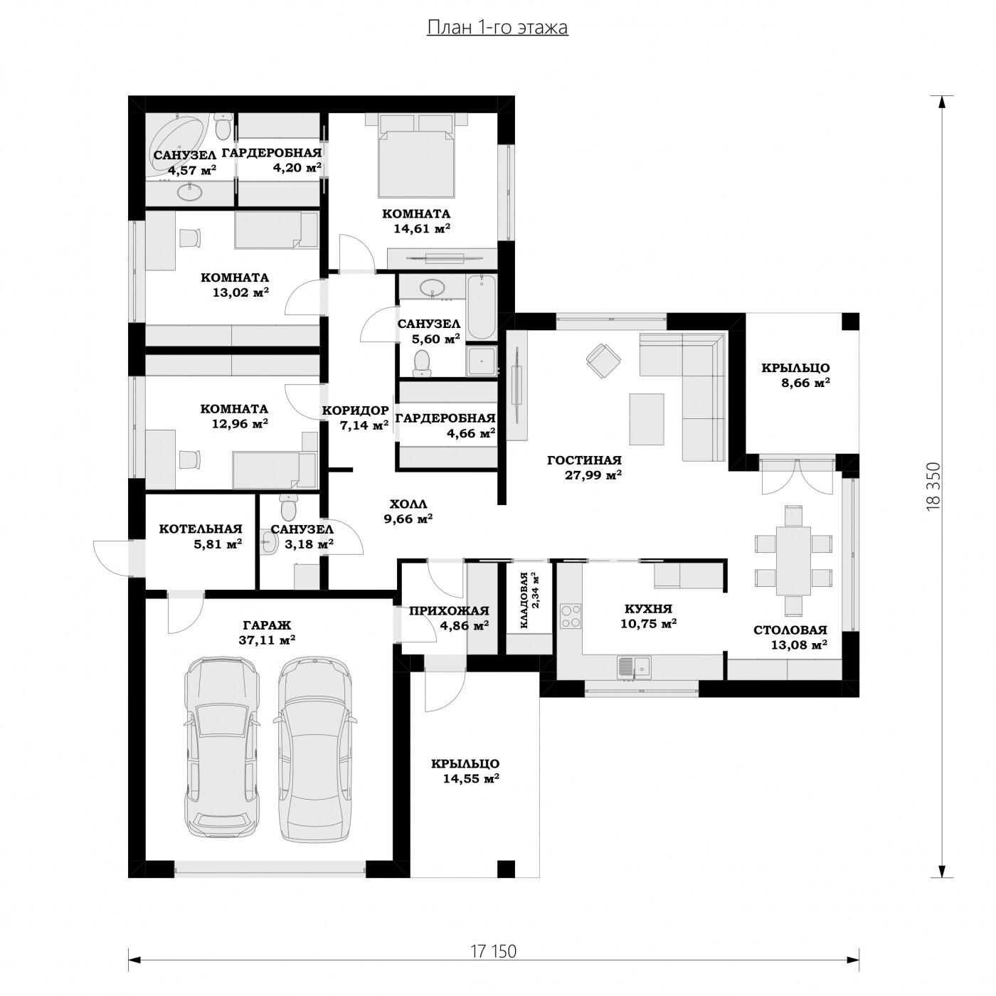
План дома Техас - идеальное предложение для людей со средним достатком. В доме есть L-образный блок, который очень функционален благодаря четкому разделению дома на зоны. В этой конструкции гребень направлен перпендикулярно дороге, что важно с точки зрения условий застройки на участке. Проект был создан для земельных участков, позволяющих отдельно стоящие здания. Проект предлагает двойной гараж форвардов. Это также интересное предложение для людей, которые ищут дом с многоскатной крышей, которая выглядит оригинально. Проект Техас представляет собой одноэтажный дом, что особенно важно в случае наличия членов семьи в пожилом возрасте, инвалидов или маленьких детей. Дизайн дома характеризуется просторной дневной зоной. Дизайн включает в себя открытую кухню. Это решение делает жилую зону очень просторной. Кроме того, просторная кладовая - полезная комната. Архитектор также предоставил место для столовой, благодаря которой совместная трапеза станет отличной возможностью пообщаться в семейной обстановке. Камин, расположенный в гостиной, не только выглядит великолепно, но и обеспечивает приятное тепло в прохладные дни. Три комфортабельных комнаты удовлетворят потребности семьи из 2-4 человек. Пространство также может быть использовано в качестве комнаты для гостей или учебы. Люди, которые ценят функциональные решения, наверняка оценят наличие шкафов. Общие барбекю и семейные трапезы будут дополнены террасой, включенной в проект. Дом спроектирован по кирпичной технологии. Его внешний вид относится к современному стилю и будет идеально соответствовать тенденциям вновь возникающих поместий.
Что входит в базовую комплектацию
Фундамент - ребристая плита "перевернутая чаша": • Толщина плиты – 200мм • Высота ребра: 300 мм; • Бетон М350 (В25) • Рабочая арматура А500С – 12мм • Армирование плиты в два уровня ячейкой 200х200мм • Гидроизоляция плиты – профилированная мембрана Planter . Щебеночное основание 100мм • Песчаная подушка – 300мм • Геотекстиль по основанию песчаной подушки • Закладные трубы коммуникаций • Устройство канализационной трассы с выводом за пределы фундамента;
Стены несущие газобетон / теплая керамика • Наружные стены 400мм газобетон / 440мм керамика • Внутренние несущие стены 200мм газобетон / 200мм керамика • Блоки газобетонные Bonolit D500; / Теплая керамика Porotherm • Кладка на тонкошовный клей; / Теплый раствор • Черновая высота потолка 3,0м • Утепленный монолитный армопояс • Утепленные монолитные перемычки • Армирование кладки через каждые 3 ряда - А3 d6мм;
Приезжайте и лично убедитесь в нашей компетентности. Оставьте контакты и мы пригласим вас на объект.
Хотите увидеть одну из наших действующих строек?
Часто задаваемые вопросы
Гарантия до 10 лет на построенные нашей компанией дома. Мы уверены в профессионализме наших сотрудников и партнеров, которые поставляют нам строительные материалы и остуществляют работы.
Мы строим каменные дома из газобетона и керамических блоков. В работе используем проверенных производителей, таких как Бонолит, Ytong, Wienerberger, Технониколь и др.
Здесь многое зависит от различных факторов: например погоды, уровня грунтовых вод, уклона на участке, сложности заезда, площади дома и прочих условий. В среднем строительство дома из газобетона в два этажа 100 - 150 м2 занимает 3 - 4 месяца.
Конечно, мы строим по всей Республике Татарстан. При общении с менеджером сообщите ему, что вы хотели бы посетить один или несколько объектов и он подберет вам наиболее подходящие по вашему месторасположению.
Мы работаем по договору в котором фиксируем цену - никаких доплат не будет, даже если стоимость материалов вырастет в 1,5-2 раза. Мы имеем резервы материалов, которые приобрели еще по старым ценам.
Мы работаем со Сбербанком и другими кредитными организациями. При оформлении заявки на нашем сайте, сообщите нашему менеджеру, что планируете взять кредит через нашу компанию и он сориентирует вас по срокам и ставкам.