"Рига"
14.40 × 9.70 м
Спален
2
Общая площадь дома
Площадь первого и второго этажей, с учетом террас, крылец, балконов и гаражей
Отапливаемая площадь
Площадь первого и второго этажей, за вычетом террас, крылец, балконов и гаражей
141.15 м2
113.24 м2
Площадь террас и крылец
В площадь входят все террасы, крыльцо и балконы
27.91м2
3
Санузлов
Габариты
Гараж
нет
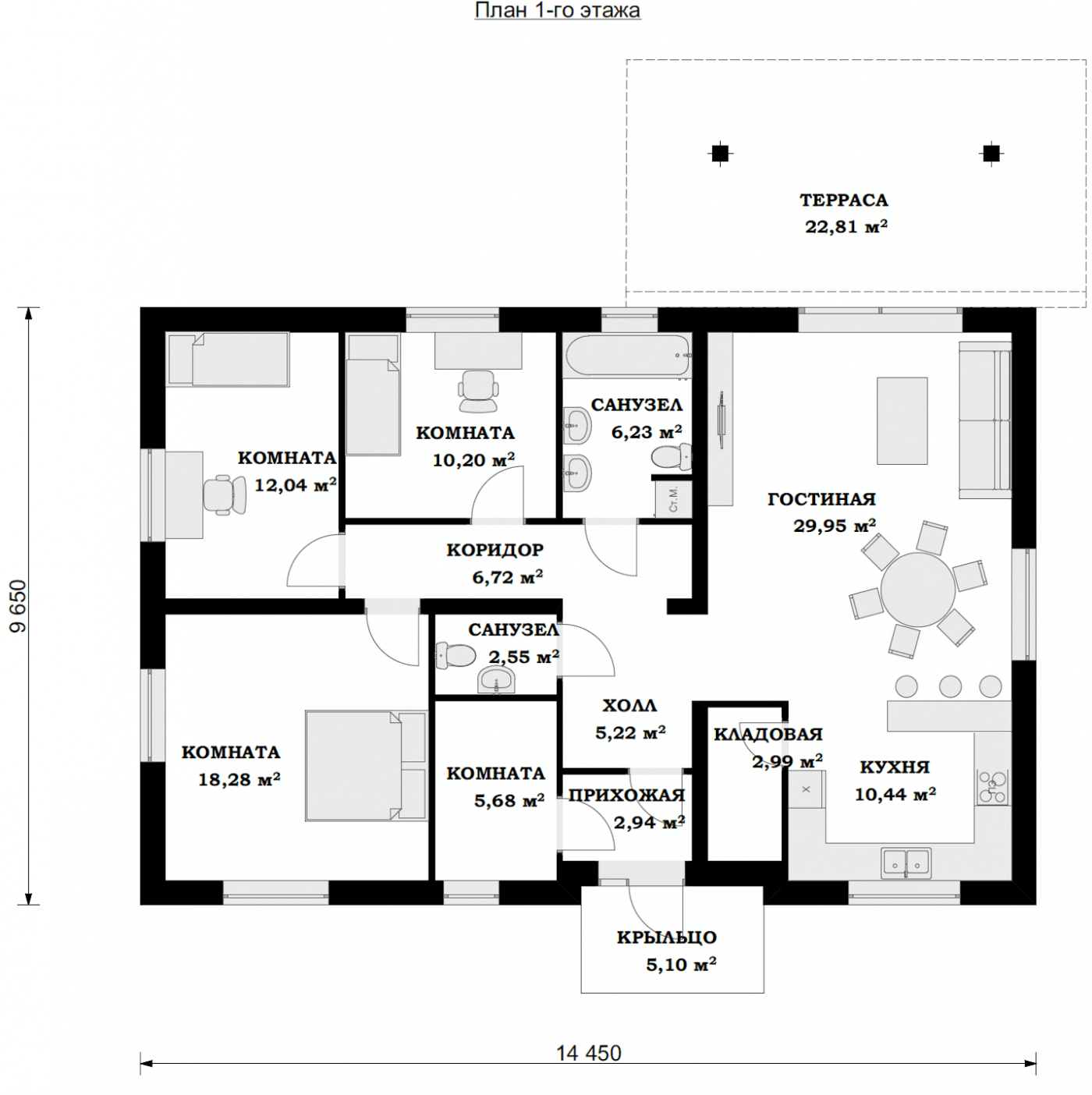
Одноэтажный дом 14 на 9
ПЛОЩАДЬ 1 ЭТАЖА 141.15 М2
Проект дома "Рига", предназначен для семьи из четырех человек, оборудован большой террасой и крытой крышей. Традиционная, очень простая форма с двускатной, не очень крутой крышей была отделана современным способом. Отсутствие четких перегородок в кузове и крыше составляет очень элегантное целое. Только фрагмент стены у входной двери был слегка убран, тем самым закрыв входную зону. Дом довольно просторный, поэтому для него потребуется большой участок. Дневная зона занимала почти треть первого этажа и примыкает к одной из щипцовых стен, выходящих на три стороны света. Большая полуоткрытая кухня с кладовой образует единый неделимый интерьер с просторной гостиной. Через широкий, раздвижная дверь соединяет комнату с очень большой террасой. Крытая уличная площадка в теплую погоду может стать неотъемлемой частью гостиной, соединяющей интерьер с садом. За вестибюлем находится открытый зал, который соединяет общую зону с небольшим туалетом, спрятанным в задней части. Камин, вытянутый стеной с двумя полостями, отделяет гостиную от тихого коридора, ведущего в ночную зону. Рядом с верхней и задней стенками расположены три регулируемые комнаты. На границе частной части есть большая ванная комната, обслуживающая их. Из вестибюля доступна еще одна комната, а именно большая котельная, которая также может выступать в качестве небольшой кладовой. Дом "Рига" функционален и организован во всех отношениях. Центральный зал соединяет все помещения, формирование четкой и разборчивой коммуникационной магистрали дома. Открытая, расширенная террасой, гостиная очень светлая и просторная. Многочисленные ниши и изгибы в прихожей обеспечивают пространство для шкафов и полок. Регулируемые, хорошо освещенные комнаты обеспечат мирный и комфортный оазис для каждого члена семьи.

Что входит в базовую комплектацию

Приезжайте и лично убедитесь в нашей компетентности. Оставьте контакты и мы пригласим вас на объект.
Хотите увидеть одну из наших действующих строек?

Часто задаваемые вопросы