"Прага"
16.40 × 17.20 м
Спален
2
Общая площадь дома
Площадь первого и второго этажей, с учетом террас, крылец, балконов и гаражей
215.20 м2
3
Санузлов
Габариты
Гараж
34.00 кв.м.
Одноэтажный дом 16 на 17
ПЛОЩАДЬ 1 ЭТАЖА 162.62 М2
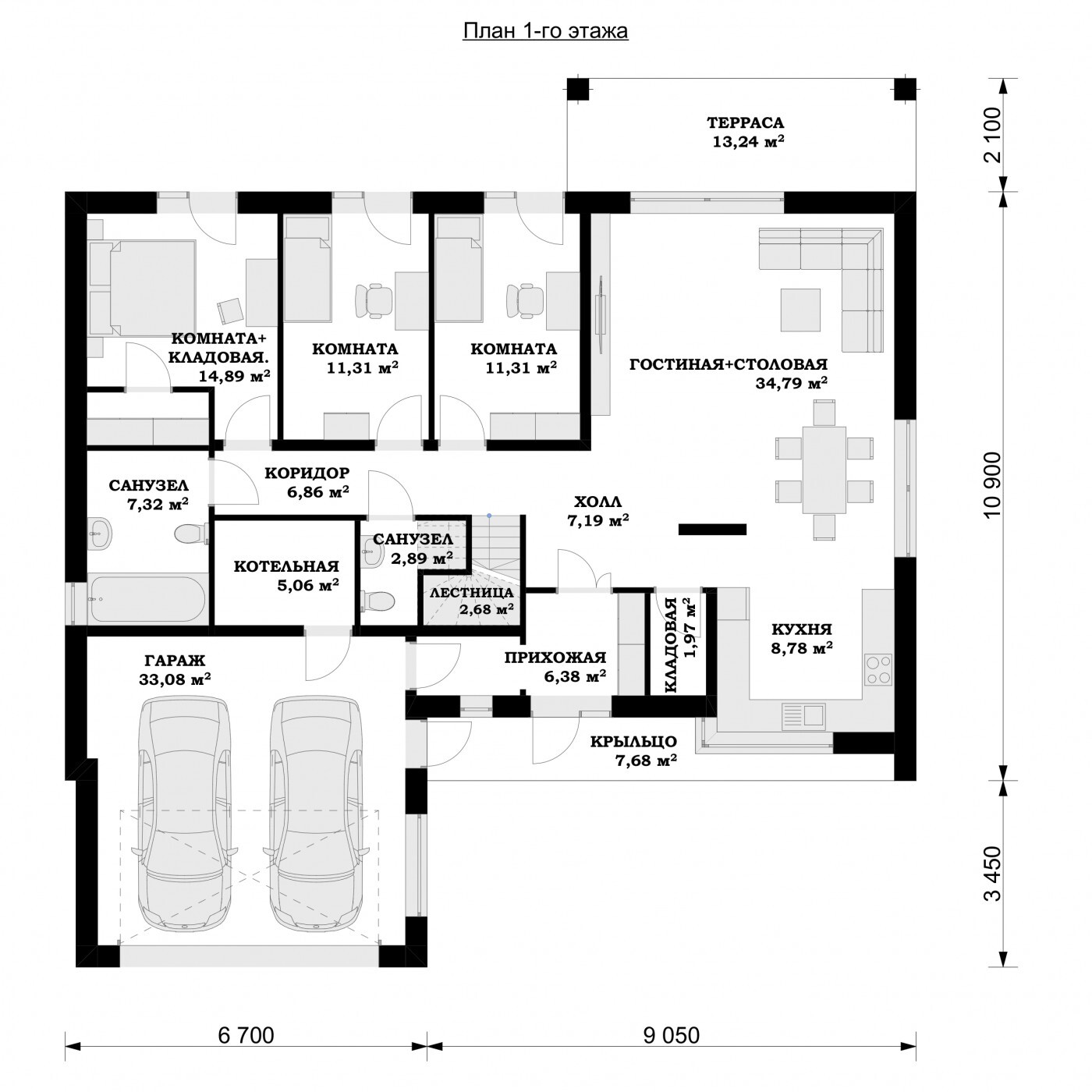
Проект одноэтажного домаявляется еще одним предложением из серии очень популярных проектов одноэтажных домов от "Рам Вилла". На этот раз это дом с двускатной крышей, простой по конструкции и с несложным блоком. Однако простой блок не является компромиссом - интересные детали, материалы, приятное остекление, которые открывают интерьер сада, создают очень привлекательный дом для одной семьи. Весь дом покрыт прямоугольной двускатной крышей под углом 25 градусов, прикрывающей небольшой чердак, который является дополнительным пространством в доме - магазине «всех вещей». Интерьер дома: все функции расположены на одном уровне, на первом этаже. Из красивого вестибюля мы идем в холл и гостиную с гостиной, столовой и кухней. Кухня с угловым окном открывается в переднюю часть дома. Рядом с кухней кладовая. Из гостиной у нас есть два больших окна - из столовой в сад, и раздвижные балконные двери - на террасу и красивая аркада. Из вестибюля мы идем по коридору до ночной части со спальнями. Есть спальни: родители с гардеробом, и две детские комнаты со встроенными шкафами. Все комнаты имеют выход на террасу. Кроме того, были спроектированы ванная комната и туалет со стиральной машиной и сушилкой. Из зала у нас есть проход через гардеробную к гаражу на две машины и котельной. Мы входим на чердак по лестнице, доступной из зала. Чердак имеет более 60 м2 дополнительной площади. Это может быть просто склад, и со временем вы можете использовать это пространство как пригодный для использования чердак - просто добавьте несколько окон и все! Проект одноэтажного дома 4 был разработан в простом, простом в сборке блоке. Дом имеет компактную планировку, это будет недорогим, чтобы нагреть и дешево в более поздней эксплуатации. Используемые материалы и решения являются энергосберегающими. Проект одноэтажного 4-х этажного дома - это идеальное предложение для Инверторов, которые хотят получить максимальный эффект от вложенных денег. Желая красивую, но также практичную и функциональную квартиру для себя и своей семьи.

Что входит в базовую комплектацию

Приезжайте и лично убедитесь в нашей компетентности. Оставьте контакты и мы пригласим вас на объект.
Хотите увидеть одну из наших действующих строек?

Часто задаваемые вопросы