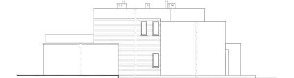
Двухэтажный дом 9 на 18 с плоской крышей «Монако» выполнен в стиле хай-тек и сразу привлекает внимание своим оригинальным остеклением. Его панорамные окна особенно оценят те, кто любит окунуться в атмосферу гармонии и единения с природой ? Выберите участок в живописном месте и будете наслаждаться видом в любое время года. По традиции, сразу при входе предусмотрена прихожая. Кстати, достаточно просторная – в ней легко поместятся два шкафа-купе. Прямо из прихожей можно попасть в котельную, а из неё – в гараж. Далее по коридору располагаются одна спальня, лестница на второй этаж и санузел без ванной. Планировка первого этажа также включает гостиную с выходом на большую крытую террасу. На ней вы можете оборудовать зону отдыха для всей семьи – поставить столик, шезлонги или даже подвесить качели ? Уверены, что на такой террасе вы будете собираться вместе гораздо чаще. Гостиная объединена с кухней и обеденной зоной – вкусные запахи любимых блюд будут добавлять ей уюта, а приготовление ужина за разговорами с семьей станет доброй традицией. На втором этаже расположены холл и три спальни, каждая из которых имеет выход на открытую террасу. В одной из спален (разумеется, хозяйской) есть большой гардероб. Планировка этажа также включает ещё один санузел – с ванной, туалетом и двумя раковинами.
Что входит в базовую комплектацию
Фундамент - ребристая плита "перевернутая чаша": • Толщина плиты – 200мм • Высота ребра: 300 мм; • Бетон М350 (В25) • Рабочая арматура А500С – 12мм • Армирование плиты в два уровня ячейкой 200х200мм • Гидроизоляция плиты – профилированная мембрана Planter . Щебеночное основание 100мм • Песчаная подушка – 300мм • Геотекстиль по основанию песчаной подушки • Закладные трубы коммуникаций • Устройство канализационной трассы с выводом за пределы фундамента;
Стены несущие газобетон / теплая керамика • Наружные стены 400мм газобетон / 440мм керамика • Внутренние несущие стены 200мм газобетон / 200мм керамика • Блоки газобетонные Bonolit D500; / Теплая керамика Porotherm • Кладка на тонкошовный клей; / Теплый раствор • Черновая высота потолка 3,0м • Утепленный монолитный армопояс • Утепленные монолитные перемычки • Армирование кладки через каждые 3 ряда - А3 d6мм;
Полный цикл работ: от подбора участка до готового дома
Что входит в стоимость дома:
Приезжайте и лично убедитесь в нашей компетентности. Оставьте контакты и мы пригласим вас на объект.
Хотите увидеть одну из наших действующих строек?
Часто задаваемые вопросы
Гарантия до 10 лет на построенные нашей компанией дома. Мы уверены в профессионализме наших сотрудников и партнеров, которые поставляют нам строительные материалы и остуществляют работы.
Мы строим каменные дома из газобетона и керамических блоков. В работе используем проверенных производителей, таких как Бонолит, Ytong, Wienerberger, Технониколь и др.
Здесь многое зависит от различных факторов: например погоды, уровня грунтовых вод, уклона на участке, сложности заезда, площади дома и прочих условий. В среднем строительство дома из газобетона в два этажа 100 - 150 м2 занимает 3 - 4 месяца.
Конечно, мы строим по всей Республике Татарстан. При общении с менеджером сообщите ему, что вы хотели бы посетить один или несколько объектов и он подберет вам наиболее подходящие по вашему месторасположению.
Мы работаем по договору в котором фиксируем цену - никаких доплат не будет, даже если стоимость материалов вырастет в 1,5-2 раза. Мы имеем резервы материалов, которые приобрели еще по старым ценам.
Мы работаем со Сбербанком и другими кредитными организациями. При оформлении заявки на нашем сайте, сообщите нашему менеджеру, что планируете взять кредит через нашу компанию и он сориентирует вас по срокам и ставкам.