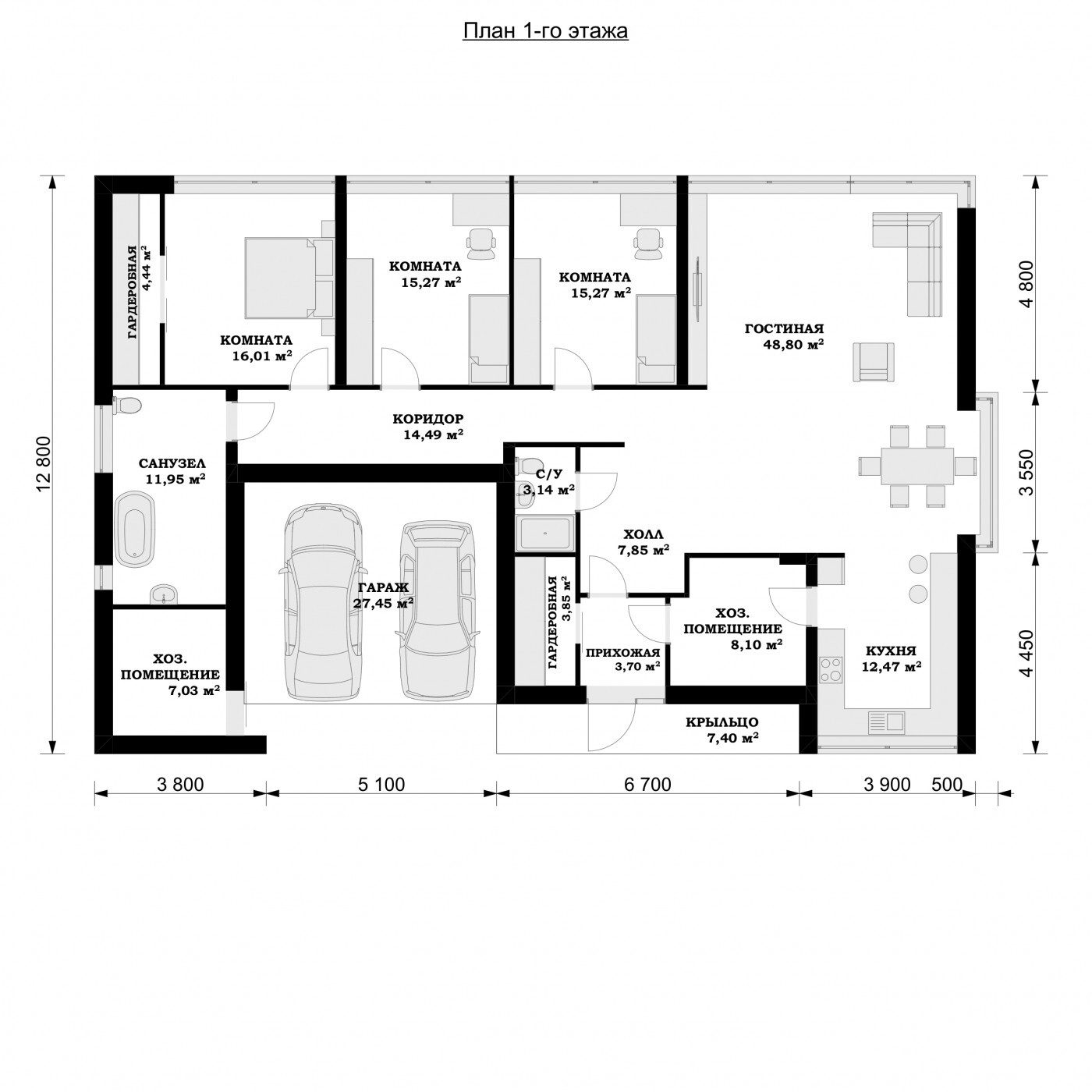
Дизайн дома "Гавана" - идеальное предложение для людей со среднешироким участком. В доме есть типичный блок, поэтому его реализация не потребит слишком много финансовых ресурсов. Дом был создан для отдельно стоящих зданий. В доме есть гараж на две машины. Корпус здания увенчан плоской крышей, что придает кузову современный вид. Проект "Гавана" - это одноэтажный дом с плоской крышей с размерами 20 на 13 , благодаря которому передвигаться по нему очень удобно. Сторонникам просторных пространств наверняка понравится дневная часть, предусмотренная в проекте. Хорошо продуманные решения на кухне дают много возможностей для обустройства и облегчают повседневное использование. В гостиной есть атмосферный камин, который дарит приятное тепло и создает в интерьере приятную атмосферу. Дизайн включает в себя две ванные комнаты, что значительно улучшит утреннюю подготовку к уходу. Три просторные спальни, включенные в дом, являются оптимальным вариантом для семьи из 2-4 человек. Пространство также может быть использовано в качестве комнаты для гостей или учебы. Очень практичное решение входит в домашний гардероб. Проекту не могло не хватить места для чрезвычайно полезного подсобного помещения. Впечатляющая терраса позволяет общаться с природой, не будучи слишком далеко от дома. Проект создан для инвесторов, планирующих построить дом по кирпичной технологии. Проект дома "Гавана" относится к современному стилю, который идеально подходит для людей, которые ценят новейшие решения.
Что входит в базовую комплектацию
Фундамент - ребристая плита "перевернутая чаша": • Толщина плиты – 200мм • Высота ребра: 300 мм; • Бетон М350 (В25) • Рабочая арматура А500С – 12мм • Армирование плиты в два уровня ячейкой 200х200мм • Гидроизоляция плиты – профилированная мембрана Planter . Щебеночное основание 100мм • Песчаная подушка – 300мм • Геотекстиль по основанию песчаной подушки • Закладные трубы коммуникаций • Устройство канализационной трассы с выводом за пределы фундамента;
Стены несущие газобетон / теплая керамика • Наружные стены 400мм газобетон / 440мм керамика • Внутренние несущие стены 200мм газобетон / 200мм керамика • Блоки газобетонные Bonolit D500; / Теплая керамика Porotherm • Кладка на тонкошовный клей; / Теплый раствор • Черновая высота потолка 3,0м • Утепленный монолитный армопояс • Утепленные монолитные перемычки • Армирование кладки через каждые 3 ряда - А3 d6мм;
Приезжайте и лично убедитесь в нашей компетентности. Оставьте контакты и мы пригласим вас на объект.
Хотите увидеть одну из наших действующих строек?
Часто задаваемые вопросы
Гарантия до 10 лет на построенные нашей компанией дома. Мы уверены в профессионализме наших сотрудников и партнеров, которые поставляют нам строительные материалы и остуществляют работы.
Мы строим каменные дома из газобетона и керамических блоков. В работе используем проверенных производителей, таких как Бонолит, Ytong, Wienerberger, Технониколь и др.
Здесь многое зависит от различных факторов: например погоды, уровня грунтовых вод, уклона на участке, сложности заезда, площади дома и прочих условий. В среднем строительство дома из газобетона в два этажа 100 - 150 м2 занимает 3 - 4 месяца.
Конечно, мы строим по всей Республике Татарстан. При общении с менеджером сообщите ему, что вы хотели бы посетить один или несколько объектов и он подберет вам наиболее подходящие по вашему месторасположению.
Мы работаем по договору в котором фиксируем цену - никаких доплат не будет, даже если стоимость материалов вырастет в 1,5-2 раза. Мы имеем резервы материалов, которые приобрели еще по старым ценам.
Мы работаем со Сбербанком и другими кредитными организациями. При оформлении заявки на нашем сайте, сообщите нашему менеджеру, что планируете взять кредит через нашу компанию и он сориентирует вас по срокам и ставкам.