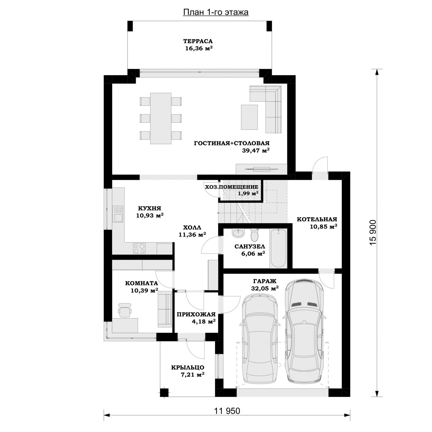
Дом имеет простую минималистичную форму, что и проект ZX 24. Проект имеет ту же реализацию, что, но в более современном стиле. Автор проекта создал двойной гараж, слегка вытянутый перед блоком, благодаря которому здание выглядит впечатляюще. Это также добавляет очарование передней аркаде, поддерживаемой элегантной колонной. Конструкция здания покрыта многоярусной крышей с низким углом наклона, что придает блоку современный вид. "Денвер"- это проект двухэтажного дома 16 на 12, который наверняка порадует тех, кто любит простор - отсутствие наклонов делает верхние комнаты полностью регулируемыми. Сердцем дома является просторная дневная зона, в которой приятно проводить время вместе с близкими. Он создан, среди прочего, функциональной открытой кухней, которую каждый инвестор может свободно адаптировать к своим потребностям. Остров на кухне - это прежде всего функциональное решение, которое является дополнительным местом для кухонной утвари. На острове также есть место для любителей шопинга, поэтому вы можете расслабиться и выпить кофе во время приготовления пищи. Сочетание столовой и гостиной способствует интеграции членов семьи. Кроме того, на первом этаже предусмотрены дополнительная комната и удобная ванная комната. Такое расположение идеально подходит для посещения гостей. На первом этаже расположены четыре спальни, поэтому проект "Денвер"является идеальным вариантом для семьи из 4-6 человек. На верхнем этаже есть ванная комната для всех членов семьи и отдельная ванная комната с выходом из спальни, что дает родителям ощущение уединения. Комфортное использование дома также зависит от подсобного помещения, включенного в него. Здание выглядит великолепно благодаря отдельной крыше над гаражной частью и впечатляющему балкону сзади. Проект создан для инвесторов, планирующих построить дом по кирпичной технологии. "Денвер" относится к современному стилю, который идеально подходит для людей, которые ценят новейшие решения.
Что входит в базовую комплектацию
Фундамент - ребристая плита "перевернутая чаша": • Толщина плиты – 200мм • Высота ребра: 300 мм; • Бетон М350 (В25) • Рабочая арматура А500С – 12мм • Армирование плиты в два уровня ячейкой 200х200мм • Гидроизоляция плиты – профилированная мембрана Planter . Щебеночное основание 100мм • Песчаная подушка – 300мм • Геотекстиль по основанию песчаной подушки • Закладные трубы коммуникаций • Устройство канализационной трассы с выводом за пределы фундамента;
Стены несущие газобетон / теплая керамика • Наружные стены 400мм газобетон / 440мм керамика • Внутренние несущие стены 200мм газобетон / 200мм керамика • Блоки газобетонные Bonolit D500; / Теплая керамика Porotherm • Кладка на тонкошовный клей; / Теплый раствор • Черновая высота потолка 3,0м • Утепленный монолитный армопояс • Утепленные монолитные перемычки • Армирование кладки через каждые 3 ряда - А3 d6мм;
Полный цикл работ: от подбора участка до готового дома
Что входит в стоимость дома:
Приезжайте и лично убедитесь в нашей компетентности. Оставьте контакты и мы пригласим вас на объект.
Хотите увидеть одну из наших действующих строек?
Часто задаваемые вопросы
Гарантия до 10 лет на построенные нашей компанией дома. Мы уверены в профессионализме наших сотрудников и партнеров, которые поставляют нам строительные материалы и остуществляют работы.
Мы строим каменные дома из газобетона и керамических блоков. В работе используем проверенных производителей, таких как Бонолит, Ytong, Wienerberger, Технониколь и др.
Здесь многое зависит от различных факторов: например погоды, уровня грунтовых вод, уклона на участке, сложности заезда, площади дома и прочих условий. В среднем строительство дома из газобетона в два этажа 100 - 150 м2 занимает 3 - 4 месяца.
Конечно, мы строим по всей Республике Татарстан. При общении с менеджером сообщите ему, что вы хотели бы посетить один или несколько объектов и он подберет вам наиболее подходящие по вашему месторасположению.
Мы работаем по договору в котором фиксируем цену - никаких доплат не будет, даже если стоимость материалов вырастет в 1,5-2 раза. Мы имеем резервы материалов, которые приобрели еще по старым ценам.
Мы работаем со Сбербанком и другими кредитными организациями. При оформлении заявки на нашем сайте, сообщите нашему менеджеру, что планируете взять кредит через нашу компанию и он сориентирует вас по срокам и ставкам.