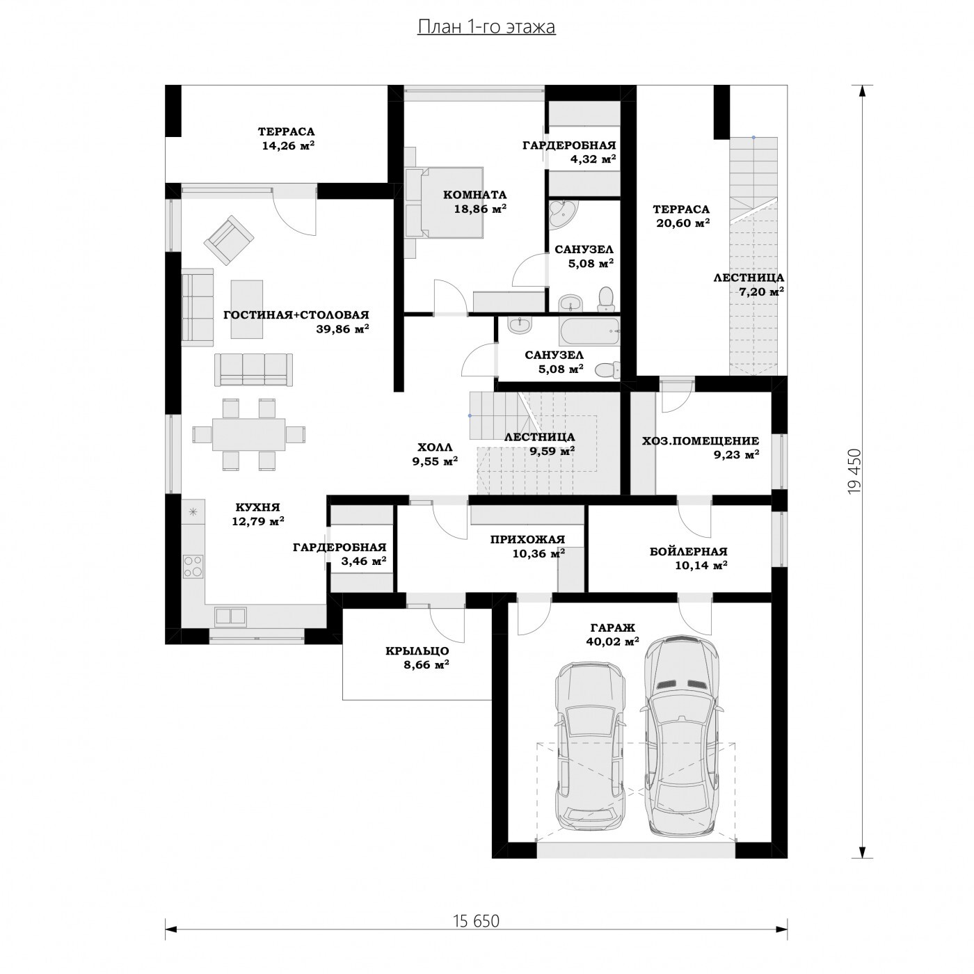
Дом 19 на 16 с плоской крышей и гаражом идеально подходит для участка со средней шириной. Объект представлен в виде L-образной постройки, благодаря чему он имеет оригинальный вид. Недвижимость спроектирована для отдельно расположенной застройки. Проект включает двунаправленное гаражное помещение. Это замечательное предложение для всех, кто хочет жить в оригинальной недвижимости. Дом 19 на 16 имеет площадь 326,96 кв. м. При этом отапливаются 231,36 кв. м. В объект входят 5 спален, 3 санузла. Комнаты уютные и просторные. Также присутствуют оригинальные коридоры. Украшением недвижимости служит стильный балкон, созданный по современным тенденциям. А большие окна создают светлое внутреннее пространство. Площадь гаража составляет 40 кв. м., он пристроен к недвижимости, что очень удобно. Преимущества дома Возведенный дом 19 на 16 с гаражом имеет свои преимущества:
привлекательный вид;
оригинальное сочетание с ландшафтным дизайном;
уменьшение сроков строительства;
простой уход;
возможность установки инженерных устройств, например солнечных панелей.
Можно заранее рассчитать, во сколько обойдется строительство элитного жилья. Цена зависит от комплектации, в которую входит немало важных параметров. Рассчитанная стоимость обязательно фиксируется в договоре.
Что входит в базовую комплектацию
Фундамент - ребристая плита "перевернутая чаша": • Толщина плиты – 200мм • Высота ребра: 300 мм; • Бетон М350 (В25) • Рабочая арматура А500С – 12мм • Армирование плиты в два уровня ячейкой 200х200мм • Гидроизоляция плиты – профилированная мембрана Planter . Щебеночное основание 100мм • Песчаная подушка – 300мм • Геотекстиль по основанию песчаной подушки • Закладные трубы коммуникаций • Устройство канализационной трассы с выводом за пределы фундамента;
Стены несущие газобетон / теплая керамика • Наружные стены 400мм газобетон / 440мм керамика • Внутренние несущие стены 200мм газобетон / 200мм керамика • Блоки газобетонные Bonolit D500; / Теплая керамика Porotherm • Кладка на тонкошовный клей; / Теплый раствор • Черновая высота потолка 3,0м • Утепленный монолитный армопояс • Утепленные монолитные перемычки • Армирование кладки через каждые 3 ряда - А3 d6мм;
Полный цикл работ: от подбора участка до готового дома
Что входит в стоимость дома:
Приезжайте и лично убедитесь в нашей компетентности. Оставьте контакты и мы пригласим вас на объект.
Хотите увидеть одну из наших действующих строек?
Часто задаваемые вопросы
Гарантия до 10 лет на построенные нашей компанией дома. Мы уверены в профессионализме наших сотрудников и партнеров, которые поставляют нам строительные материалы и остуществляют работы.
Мы строим каменные дома из газобетона и керамических блоков. В работе используем проверенных производителей, таких как Бонолит, Ytong, Wienerberger, Технониколь и др.
Здесь многое зависит от различных факторов: например погоды, уровня грунтовых вод, уклона на участке, сложности заезда, площади дома и прочих условий. В среднем строительство дома из газобетона в два этажа 100 - 150 м2 занимает 3 - 4 месяца.
Конечно, мы строим по всей Республике Татарстан. При общении с менеджером сообщите ему, что вы хотели бы посетить один или несколько объектов и он подберет вам наиболее подходящие по вашему месторасположению.
Мы работаем по договору в котором фиксируем цену - никаких доплат не будет, даже если стоимость материалов вырастет в 1,5-2 раза. Мы имеем резервы материалов, которые приобрели еще по старым ценам.
Мы работаем со Сбербанком и другими кредитными организациями. При оформлении заявки на нашем сайте, сообщите нашему менеджеру, что планируете взять кредит через нашу компанию и он сориентирует вас по срокам и ставкам.